Client
Elie Hreiry
Location
Zebdine – Lebanon
Date
2019
Zebdine – Lebanon
Download
Plans & Drawings
Questions?
Project Status
Design packages: Finished 02/2019
Permit: finished 08/2019
Scope of work
Architectural design, Structural/civil engineering design, mechanical design, electrical design, interior design, permit preparation.
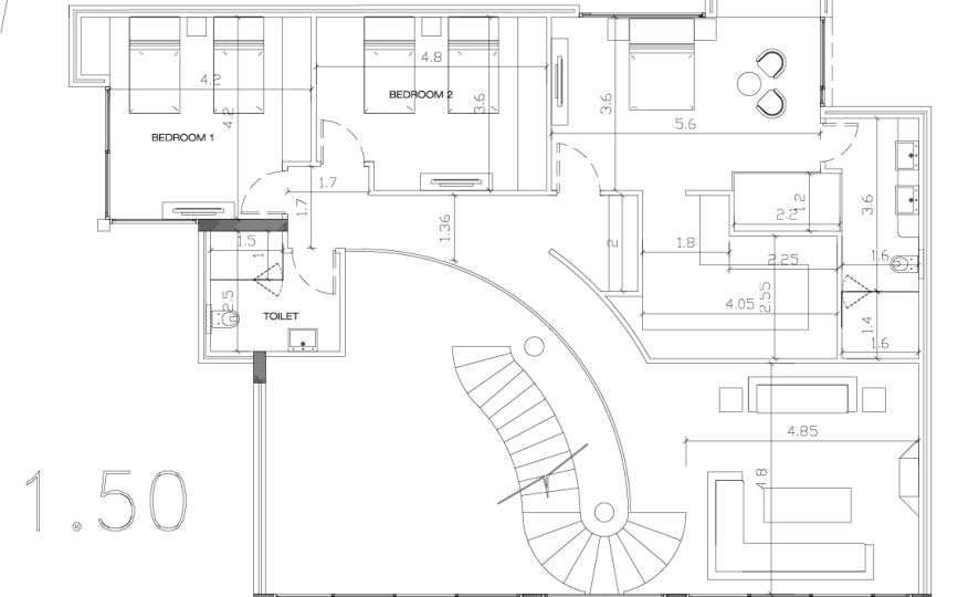
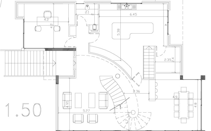
Description/Built up area
3 Story residential villa including 1 basement & 2 Floors/ total built up area 550m2
