Client
Eng. Simon Abi Ghosn
Location
Jbeil-Lebanon
Date
2016
Jbeil-Lebanon
Eng. Simon Abi Ghosn
Download
Plans & Drawings
Questions?
Project Status
completed 05/2016
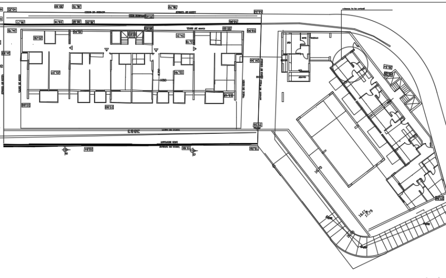
Scope of work
Structural engineering design
Description/Built up area
4 Common Basements + 5 upper Story Hotel (BLOCK A & B) / 10000m2
